Bürgerverein Mündelheim 1988 e.V.
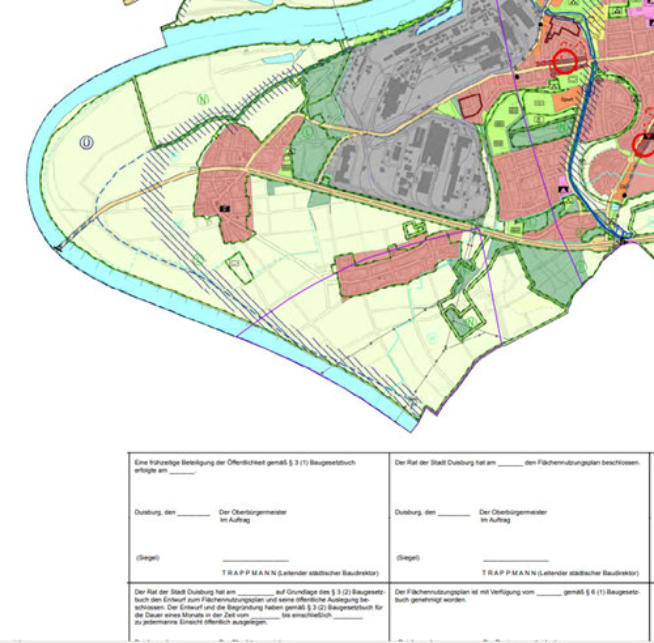
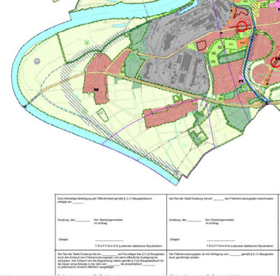
Vorentwurf des Flächennutzungsplan vom 30. November 2016 Die Stadt Duisburg plant im Vorentwurf des Flächen- nutzungsplan für den Mündelheimer Rheinbogen wie folgt: • vorläufig gesicherte Überschwemmungsgebiet Ü • geplantes Wasserschutzgebiet W • Naturschutzgebiet N • Landschaftsschutzgebiet L
letzter Stand letzter Stand letzter Stand
Hintergrund Hintergrund Hintergrund
  • bisheriger Verfahrensstand
  • Warum ?
  • Rheinbogen
Planungssysteme  Planungssysteme Planungssysteme
  • Planungsverfahren Europa
  • Planungssystem Landesebene
  • Landesentwicklungsplan (GEP 99)
  • Regionalplan GEP99
  • Regionalplan Entwurfsfassung 2018
  • FNP aktuell seit 1986
    • AktFNP-Überschwemmungsgebiet
    • AktFNP-Wasserschutzgebiet
    • AktFNP-Landschaftsschutzgebiet
  • FNP Vergleich Plan gegen aktuell
    • Überschwemmungsgebiet
    • Wasserschutzgebiet
    • Naturschutzgebiet
    • Landschaftsschutzgebiet
verschiedene Aspekte verschiedene Aspekte verschiedene Aspekte
  • Grundwasser
  • Überschwemmungsgebiet
  • Ackerflächen
  • Naherholung
  • Belästigungen - Verkehr,Staub,Lärm...
  • weitere Aspekte
    • noch zu betrachten - Teil 1
    • noch zu betrachten - Teil 2
unsere Aktivitäten unsere Aktivitäten unsere Aktivitäten
Petition / Unterstützung  Petition / Unterstützung Petition / Unterstützung
=> BV-Menue => BV-Menue => BV-Menue
Bürgerverein Mündelheim 1988 e.V.
Die Stadt Duisburg plant im Vorentwurf des Flächen- nutzungsplan für den Mündelheimer Rheinbogen wie folgt: • vorläufig gesicherte Überschwemmungsgebiet Ü • geplantes Wasserschutzgebiet W • Naturschutzgebiet N • Landschaftsschutzgebiet L
Vorentwurf des Flächennutzungsplan vom 30. November 2016
letzter Stand letzter Stand letzter Stand
Hintergrund Hintergrund Hintergrund
  • bisheriger Verfahrensstand
  • Warum ?
  • Rheinbogen
Planungssysteme  Planungssysteme Planungssysteme
  • Planungsverfahren Europa
  • Planungssystem Landesebene
  • Landesentwicklungsplan (GEP 99)
  • Regionalplan GEP99
  • Regionalplan Entwurfsfassung 2018
  • FNP aktuell seit 1986
    • AktFNP-Überschwemmungsgebiet
    • AktFNP-Wasserschutzgebiet
    • AktFNP-Landschaftsschutzgebiet
  • FNP Vergleich Plan gegen aktuell
    • Überschwemmungsgebiet
    • Wasserschutzgebiet
    • Naturschutzgebiet
    • Landschaftsschutzgebiet
verschiedene Aspekte verschiedene Aspekte verschiedene Aspekte
  • Grundwasser
  • Überschwemmungsgebiet
  • Ackerflächen
  • Naherholung
  • Belästigungen - Verkehr,Staub,Lärm...
  • weitere Aspekte
    • noch zu betrachten - Teil 1
    • noch zu betrachten - Teil 2
unsere Aktivitäten unsere Aktivitäten unsere Aktivitäten
Petition / Unterstützung  Petition / Unterstützung Petition / Unterstützung
=> BV-Menue => BV-Menue => BV-Menue